
Experienced distribution systems experts with demonstrated skills in complex multi-disipline projects in a wide variety of regulated environments.
Specification of all items within a substation including switchgear, transformers, cables, BTUs at any stage of a project including feasibility, tender, detailed construction design or as built records
Electrical modelling using simulation software (Etap and Trimble), load flow analysis, fault level analysis and protection coordination and grading
Safe and compliant assessment of existing and design of new electrical earth installations to the latest standards (IEC50522, BS7430, ENA TS 41-24 and S34)
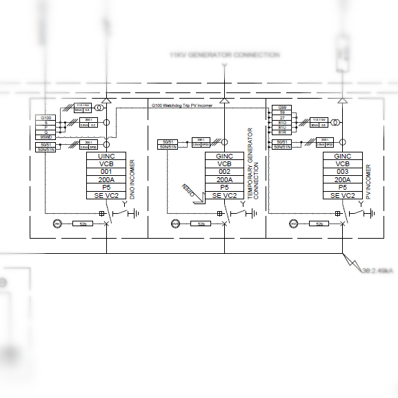
Clear and detailed GAs layouts, SLD, control or earth schematic diagram production to industry standards using AutoCAD
Ensures compliance of installations with latest standards including Load and Harmonic Studies (G5), Rapid voltage change, flicker and unbalance (P28, P29)
Arc flash risk assessment per the calculation methodology set out in IEEE 1584 and related guidance
Calculation of suitable cable rating and arrangement for overground and underground cable management and containment systems.
Design and construction of control and indication panels for all applications incluing remote control of switchgear, inter-tripping, protection relays, auxilliary power.
Electric Vehical charging installations compliant with the lastest standards